2 - POKOJOWE MIESZKANIE W ATRAKCYJNEJ LOKALIZACJI - Hestia Nieruchomości
Mieszkanie na sprzedaż
Goleniów,

numer oferty: 407436
Cena: 385 009 zł
rata od: 1 729 zł
Cena za m2: 6 990 zł
Piętro:
1/2
Liczba pokoi:
2
Rok budowy:
2024
Miejsce parkingowe:
garaż,
Standard:
DO WYKOŃCZENIA

Doradca odpowiedzialny za ofertę

Zapytaj o ofertę

2 - POKOJOWE MIESZKANIE W ATRAKCYJNEJ LOKALIZACJI

Zapraszamy Państwa już dziś do skorzystania z wyjątkowej okazji - mieszkań w nowo powstającym bloku wielorodzinnym w Goleniowie,
przy ul. Inwalidzkiej, na Osiedlu Zacisze.

Podstawowe atuty to urokliwa lokalizacja z widokiem na rzekę Inę, miejsca parkingowe w garażu podziemnym, blisko centrum miasta.

Inwestycja zakłada budowę wolnostojącego budynku wielorodzinnego - łącznie 54 mieszkania w stanie deweloperskim - jedno-, dwu- i trzypokojowe.

Mieszkania na parterze z przynależnym terenem zielonym, na pozostałych piętrach funkcjonalne balkony.

Do dyspozycji mieszkańców przeznaczone zostaną 52 miejsca parkingowe w garażu podziemnym DODATKOWO PŁATNE oraz 16 miejsc - ogólnodostępnych dla mieszkańców i gości. Dodatkowo przewidziano miejsca do ładowania pojazdów elektrycznych.

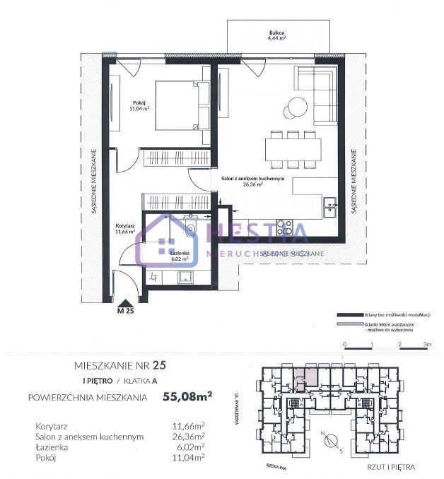
Przedmiotowa oferta obejmuje 2 pokojowe mieszkanie o pow. 55,08 m2, położone na I piętrze budynku.

Lokal składa się z:

- salonu z aneksem kuchennym,
- łazienki,
- pokoju,
- garderoby,
- korytarza.

Teren osiedla zostanie ogrodzony, przewidziano również zagospodarowanie w postaci placu zabaw i zadaszonej rowerowni. Nieruchomość wraz z terenem przynależnym będzie monitorowana.

Na potrzeby przedmiotowej inwestycji dokonano wymiany gruntu. Wykorzystano najnowocześniejsze technologie budowy przeznaczone dla terenów położonych w pobliży wód, spełniając najwyższe standardy budowlane. Wykonano izolację parkingu podziemnego z wysokiej jakości materiałów, za pomocą rozwiązań włoskiej technologii.

WYKOŃCZENIE BUDYNKU:

I. Mieszkania:

• Gniazdka i łączniki firmy Legrand,
• C.O. z rozprowadzeniem podłogowym,
• Instalacja domofonowa z wideodomofonem,
• Instalacja TV satelitarnej i naziemnej,
• Instalacja internetowa światłowodowa,
• Podejścia wodne i kanalizacyjne,
• Okna ścienne 5 komorowe, 3 szybowe,
• Drzwi wejściowe antywłamaniowe,
• Posadzki – wylewka betonowa,
• Tynki gipsowe, zabudowy z płyt K-G.

II. Konstrukcja budynku:

• Posadzka wylewana betonowa w garażu zatarta na gładko, wykończona żywicą,
• Ściany garażu żelbetowe, sufit i ściany nietynkowane,
• Ściany kondygnacji nadziemnych murowane, tynkowane.

Planowany termin zakończenie budowy - IV.2024 r., ostateczna sprzedaż- najpóźniej do VI.2025 r.

Skorzystaj z promocji - pierwsze 15 mieszkań i miejsc parkingowych w cenie promocyjnej.

Cena zawiera podatek VAT, kupujący nie płaci 2% PCC u Notariusza.

W bliskiej lokalizacji ścisłego centrum miasta: 800 m do galerii handlowej Mini Park, Biedronki, stacji PKP, przystanków busów i autobusów. Najbliższy sklep w odległości 50m. Planowany przystanek komunikacji miejskiej. Oświetlona ścieżka rowerowa i chodnik do miasta.

Zapraszamy do biura sprzedaży w Goleniowie w celu uzyskania szczegółowych informacji o ofercie.

BEZPŁATNIE POMAGAMY W UZYSKANIU KREDYTU !!!

Treść niniejszego ogłoszenia nie stanowi oferty handlowej w rozumieniu Kodeksu Cywilnego. Treść ma charakter informacyjny i zalecamy ich osobistą weryfikację. Kontaktując się z biurem Klient wyraża zgodę na przetwarzanie danych osobowych zgodnie z przepisami ustawy z dnia 29 sierpnia 1997 roku o ochronie danych osobowych / Dz.U.Nr. 133 poz. 883/. Klientowi przysługuje prawo do wglądu do swoich danych osobowych i ich aktualizacji.

Symbol407436
Symbol SWO407436
Rodzaj nieruchomościMieszkanie
Rodzaj transakcjiSPRZEDAŻ
Rodzaj rynkuPIERWOTNY
Cena cena w innych walutach 385 009, 20 PLN
Cena za m26 990, 00 PLN
KrajPOLSKA
WojewództwoZACHODNIOPOMORSKIE
MiejscowośćGOLENIÓW
Prawobrzeże /lewobrzeżePRAWOBRZEŻE
UlicaInwalidzka
Powierzchnia całkowita55, 08 m2
Forma własności działkiWŁASNOŚĆ
Rodzaj mieszkania2-POKOJOWE
Rodzaj budynkuNISKI BLOK
Rok budowy2024
StandardDO WYKOŃCZENIA
Materiał ścianBLOCZKI
Typ kuchniANEKS KUCHENNY
Liczba łazienek1
Droga dojazdowaASFALTOWA
Liczba pokoi2
Piętro1
Liczba pięter2
Źródło c.w.SIEĆ MIEJSKA
OgrzewanieC.O. GAZOWE
Forma własnościWŁASNOŚĆ
Rodzaj okienPCV
Garaż
Nr Licencji24070
Czynsz administracyjny500, 00 PLN

zobacz wszystkie cechy


rata od: 1 729 zł   OBLICZ RATĘ

Oddział Szczecin

71-600 Szczecin
Parkowa 7/2

Oddział Stargard

73-110 Stargard
al. Wyszyńskiego 12-15a